-
- Объявления
|
Электромонтаж Электромонтажные работы в деревянном доме. www.electric-house.ru |
Местная Конституция | FAQ - Часто задаваемые вопросы | Для новичков! | Реклама на форуме! | Публикация сообщений | Как вставить картинку или файл
Прежде чем задать вопрос, воспользуйтесь поиском - возможно, что такая тема уже есть на форуме. За нарушение правил Ваш вопрос может быть удален без объяснения причин!
-
- Сообщение
Правильная схема электропроводки в загородном доме
-
- Сообщение
Правильная схема электропроводки в загородном доме

-
- Сообщение
- sergey_sav







- Лидер тех. поддержки

- Технический директор

- Прогресс звания:
-
- Заслуженная репутация: 161 +50 / -0

















Правильная схема электропроводки в загородном доме
Все тематические вопросы и ответы на них только на форуме!
Санк-Петербург. Электромонтажные работы.
-
- Сообщение
Правильная схема электропроводки в загородном доме
В нашей многострадальной стране людям не хватает денег для покупки нового жилья. Вторичный рынок квартир, т.е. квартир «Б.У.» становится все более популярным. Первое, что делают новоселы после покупки – это готовятся к ремонту. Но ремонтировать нужно не только стены, пол, и потолок, но и проводку.
Дело в том, что в прошлом веке, когда это жилье строили, рассчитывали на энергопотребление квартиры 1-2 кВт, а сейчас оно легко может доходить до 10 кВт. Почти у всех есть стиральная машина, СВЧ печь, утюг, фен, пылесос, электротостер, электрогриль и т.д. Большинство из этих приборов с легкостью потребляют 1-2 кВт, а ведь они могут быть включены одновременно! Менять придется даже электросчетчик. Современный электросчетчик рассчитан на ток не менее 50 А.
Но как приступить к ремонту электропроводки? Для этого существуют определенные правила. Они помогут Вам экономить время, деньги и здоровье.
Первое
Ремонт электропроводки начните с проекта. Определите, какие приборы будут стоять в каждой комнате. Какое там будет освещение, где будут розетки и выключатели. На какой высоте их нужно установить. Раньше было общепринято устанавливать розетки на высоте 80-90 см, а выключатели 150-160 см от пола.
Теперь пришла другая мода: розетки на высоте 30-40 см, а выключатели 80-90 см. Исключение составляют розетки на кухне, там они ставятся на высоте 10 см от уровня столешницы. Не экономьте на розетках, лучше ставить их на расстоянии не более 3 м друг от друга.
Второе
Менять проводку при ремонте нужно сразу и целиком. Во-первых, потому, что раньше использовали алюминиевые провода, а они недолговечны и имеют массу очень существенных недостатков. Во-вторых, при ремонте электропроводки нельзя соединять алюминиевые провода и медные. В-третьих, замена электропроводки работа, связанная со штроблением стен. Лучше сделать ее в квартире без мебели, т.к. будет много грязи и неудобств.
Третье
Перед заменой электропроводки рассчитайте потребление. Сложите мощности электроприборов, что будут запитаны от одной линии (одного автомата). Принято, что от одного автомата были подключены не более 5 розеток. Суммарная мощность нагрузок этих розеток должна быть не более 5 кВт. Сечение провода для розеток 2.5 квадрата. Автомат ставиться на ток не более 25 А. Сечение провода на освещение не менее 1.5 квадрата. Мощность приборов освещения не более 3 кВт. Автомат ставиться на ток не более 16 А.
Четвертое
Не экономьте на материалах. Кабель лучше брать ВВГнг 3х2.5 и ВВГнг 3х1.5. Выбирайте розетки, коробки и выключатели средней ценовой категории. Критерием оценки должно быть качество выполнения контактных соединений (лучше хромированные или никелированные контакты), термостабильная основа (лучше керамика).
Автоматов в электрощитке должно быть столько, сколько у вас отдельных линий с освещением и розетками. Для влажных помещений желательно использовать УЗО или дифференциальные автоматы. Эти устройства защищают людей от электротравм, в случае их касания за оголенные провода и части оборудования, находящегося под напряжением.
Пятое
На месте соединения электропроводки располагаются электрокоробки (распаечные коробки). Они должны быть в доступных местах, ремонтные работы не должны закрывать легкий доступ к коробкам. Электрощиток лучше поставить внутри квартиры, тогда количество автоматов и УЗО вы можете выбрать сами и легко расширить их количество.
Шестое
Нужно грамотно выполнять соединение электропроводов. Сейчас в моде колодки WAGO и им подобные для быстрых соединений. Они, конечно, ускоряют монтаж, но если вы хотите 100% надежность соединений, то лучше использовать скрутку с последующей пайкой или сваркой. Дело в том, что колодки дают точечный контакт и это место может со временем сильно греться. Скрутка и пайка дают пятно контакта, площадью несколько квадратных сантиметров!
Седьмое
Осуществляя ремонт электропроводки всегда думайте о будущем. Оставляйте резервные автоматы, розетки, коробки. Все со временем портится и нужно сделать работу так, чтобы ремонт или дополнение проводки были максимально простыми, чтобы впоследствии не было мучительно больно за потраченные время и деньги.
Восьмое (самое важное!)
При работе c электропроводкой необходимо всегда соблюдать правила техники безопасности и четко понимать что и для чего вы делаете!

-
- Сообщение
- ВИТАЛИЙ ЙЙ





- Заслуженный член клуба

- Энергетик

- Прогресс звания:
-
- Заслуженная репутация: 50 +12 / -0






Правильная схема электропроводки в загородном доме
-
- Сообщение
- sergey_sav







- Лидер тех. поддержки

- Технический директор

- Прогресс звания:
-
- Заслуженная репутация: 161 +50 / -0

















Правильная схема электропроводки в загородном доме
fedorov писал(а):третье
Очень спорная рекомендация.
ИМХО - крайне вредная и опасная!
fedorov писал(а):четвертое
Во влажных помещениях УЗО не "рекомендуется", а "требуется"
Все тематические вопросы и ответы на них только на форуме!
Санк-Петербург. Электромонтажные работы.
-
- Сообщение
Правильная схема электропроводки в загородном доме
-
- Сообщение
- sergey_sav







- Лидер тех. поддержки

- Технический директор

- Прогресс звания:
-
- Заслуженная репутация: 161 +50 / -0

















Правильная схема электропроводки в загородном доме
zoxan писал(а): стиралка, простые розетки и свет. сечение провода на 25А 3*2,5
zoxan писал(а):Почитал форумы, обзоры и тому подобную литературу, кое что понял
Многократно говорено, что делая для себя и людей не стоит устраивать электропроводке краш-тест.
Остановитесь на номиналах автоматов 16А для розеток (механизм 16А) при кабеле 3*2,5 и 10А (6А) для освещения при кабеле 3*1,5. И проводка жить будет счастливо и ограничений особых не почувствуете.
Все тематические вопросы и ответы на них только на форуме!
Санк-Петербург. Электромонтажные работы.
-
- Сообщение
Правильная схема электропроводки в загородном доме
Добавлено спустя 18 минут 4 секунды:
и еще, перед счетчиком, не надо ставить автомат номиналом УЗО? или я что то не правильно понял?
-
- Сообщение
Правильная схема электропроводки в загородном доме
zoxan писал(а):по поводу водогрейки, хватит ей разве 16А?
Мощность и номинальный ток "водогрейки" указаны на шильдике и в паспорте прибора. Как правило, 16-ти ампер , обычно хватает. Если нет, то кладите кабель большего (соответствующего) сечения.
zoxan писал(а): я решил совместить розетки (максимум пылесос и компьютер) со светом, ниче страшного?
При номинале автомата не более 10А ничего страшного (включатели (большая их часть) рассчитаны на 10А).
zoxan писал(а):3*2,5, пойдет?
Может зависеть от расстояния до кухни, либо гаража.
zoxan писал(а):и еще, перед счетчиком, не надо ставить автомат номиналом УЗО?
Уже писалось:
sergey_sav писал(а): УЗО при АВ 40А лучше взять на 63А , его дифток не указан, поэтому не понятно его назначение...
zoxan писал(а): 10 мА
-
- Сообщение
Правильная схема электропроводки в загородном доме
2)sergey_sav писал (а):
УЗО при АВ 40А лучше взять на 63А , его дифток не указан, поэтому не понятно его назначение...
назначение: защита от сверхтока, хуже ведь от этого не станет?
3)если водогрейка более мощная и ставить на 25А, то кабель 3*4?
4)до летней кухни, оттуда в гараж и крайняя розетка примерно 20-25 м
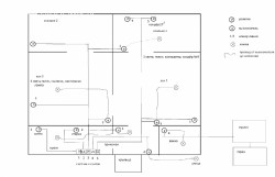
в итоге должно получиться примерно так:
Добавлено спустя 16 минут 47 секунд:
это в итоге по дому. Все ли здесь нормально, нигде нет перегрузки? Сейчас все это (только без водогрейки) работает на 1 автомате 16А

Добавлено спустя 6 минут 11 секунд:
на общей схеме, в некоторых местах линии прерываются, сори, это глюк масштабирования

Добавлено спустя 4 минуты 27 секунд:
какие то странные смайлики, вроде другие писал....
- Вложения
-
- Сообщение
Правильная схема электропроводки в загородном доме
zoxan писал(а):Добрый день, товарищи электрики! Пришло время менять проводку с стареньком, но в большом и хорошем доме в связи с появление большого количества мощной бытовой прожорливой техники, с которой старой проводке уже справляться весьма сложно.
Прежде чем приступать к ремонту и замене электропроводки, нужно;
1. в маштабе начертить план дома
2. расставить оборудования
а) в кухне как будет находится кухонная мебель, где будет холодильник, где будет рабочая поверхность, если телевизор , то где он будет стоять, обеденый стол.
б) Зал ометить нахождение телевизора, если плазма то на какой высоте будет установлен от пола.
в) спальня, как расположена кровать
г) детская где будет стоять стол, так как там вероятней будет компьютер, как будет стоять кровать
д) ванная, расположение ванны расположение умывальника и зеркала.
3. расставить люстры, бра, светильники.
Вот после расстановки всего оборудования, можно приступать к составлению электрической схемы дома. Желательно линии освещения и розеточные линии вести раздельно. Линия на летнюю кухню и гараж вести отдельно прямо со считка. Линию на котел отдельно. Линию на кондиционер отдельно.
-
- Сообщение
Правильная схема электропроводки в загородном доме
-
- Сообщение
Правильная схема электропроводки в загородном доме
У вас просто спешное решение.
К примеру возмем кухню. Она обычно самая энергопотребляемая.
1. Розеток рабочей группы на высоте 1100 мм от уровня пола над рабочей поверхностью кухонной стенки, куда ваша жена будет включать, комбайн, кофемолку,
миксер. Обычно там устанавливается 3 розетки.
2. Розетка электродуховки ( если таковая будет)
3. Розетки микроволновки
4. Розетка котел ( уже отмечена) Розетка центробежного насоса на отопление 100 ват
5 Розетка стиральной машины
6. Розетка посудомойки (если таковая будет)
7. Розетка холодильника.
8. Розетка вытяжки над газовой плитой
9. Розетка поджига газовой плиты
10. Освещение кухни ( общее)
11. Освещение рабочей поверхности
12 Розетка телевизора (если таковой будет)
Вот вам размышление над оборудованием в кухне что и как будет стоять, где стоять. А ведь это только кухня. И уже на нее нужно заводить как минимум 5 линий. А это 5 автоматов
-
- Сообщение
Правильная схема электропроводки в загородном доме
-
- Сообщение
Правильная схема электропроводки в загородном доме
-
- Сообщение
Правильная схема электропроводки в загородном доме
sergey_sav писал(а): УЗО при АВ 40А лучше взять на 63А , его дифток не указан, поэтому не понятно его назначение...
zoxan писал(а):назначение: защита от сверхтока, хуже ведь от этого не станет?
УЗО с защитой от "сверхтоков"- это дифавтомат. Ставится он на отдельные группы потребителей, а не на ввод. УЗО по назначению бывает либо противопожарным, либо защитным.
-
- Сообщение
Правильная схема электропроводки в загородном доме
-
- Сообщение
Правильная схема электропроводки в загородном доме
На сколько ампер рассчитан счетчик?
Какой сейчас стоит автомат на вводе?
И вообще как выполнен ввод: чем выполнена линия по опорам, какими проводами ввод в дом, на щиток и т.д.?
По правилам положено ставить комутационный аппарат перед счетчиком и автоматы после него.
-
- Сообщение
Правильная схема электропроводки в загородном доме
По поводу счетчика, фото прилагаю.
Ввод выполнен от ближайшего столба за калиткой, алюминиевым проводом, сечение точно не скажу на глаз не вижу,примерно 2*4-6мм, фото тоже прилагаю.
Схема разводки сейчас самая примитивная, схему прилагаю.
-
- Ссылки на тему
| Ссылка: | |
| BBcode: | |
| HTML: |
-
- Похожие темы
- Ответы
- Просмотры
- Последнее сообщение
-
-
Пластиковые трубы для электропроводки. DKC
electrohoz в форуме Каталог производителя - 0
- 117
-
electrohoz
10 фев 2014, 18:07
-
Пластиковые трубы для электропроводки. DKC
-
-
В чем опасность неисправной электропроводки?
1, 2 elhouse в форуме Общие темы по электрике - 33
- 2988
-
Василич
31 май 2013, 11:42
-
В чем опасность неисправной электропроводки?
-
-
Замена электропроводки в квартире
1, 2, 3, 4, 5 ROne в форуме Электромонтаж в квартире - 93
- 16458
-
32vieri
12 ноя 2014, 22:14
-
Замена электропроводки в квартире
-
-
Пропайка скруток электропроводки
1, 2 serj011 в форуме Электромонтаж в квартире - 20
- 1275
-
миш
15 апр 2011, 19:30
-
Пропайка скруток электропроводки
-
-
Электричество в загородном доме. Щиток. Покритикуйте!
f1eryG в форуме Электромонтаж на даче, коттедже, бане - 13
- 3851
-
f1eryG
02 июл 2010, 14:06
-
Электричество в загородном доме. Щиток. Покритикуйте!
-
- Объявления
Вернуться в Электромонтаж на даче, коттедже, бане
Кто на форуме
Всего посетителей: 1, из них зарегистрированных: 0, скрытых: 0 и гостей: 1 (основано на активности пользователей за последние 10 минут)
Больше всего посетителей (279) здесь было 04 сен 2013, 15:45
Сейчас эту тему просматривают: нет зарегистрированных пользователей и гости 1
Права доступа
Вы не можете начинать темы
Вы не можете отвечать на сообщения
Вы не можете редактировать свои сообщения
Вы не можете удалять свои сообщения
Вы не можете добавлять вложения
Легенда
| Новые сообщения | Нет новых сообщений | Форум закрыт | |||
| Подфорум Новые сообщения | Подфорум Нет новых сообщений | Ссылка на форум |
-
- Объявления
|
phpBB® Forum Software © phpBB Group
Русская поддержка phpBB Связь с администрацией Администраторский раздел |
|


Загрузка. Подождите...


































